Садовые качели своими руками
В связи с постоянным проведением всего свободного времени на даче, возникла мысль, что надо купить наверно садовые качели, чтобы можно было усесться всей семьей и расслабиться)))) Актуально это было и для меня в связи с тем, что свою младшенькую я кормила грудью и надо было где-то уединиться. Муж загорелся!!! Но во всех строительных гиперах эти хлипкие скрипучие металлические качели стоят 12 тыс. руб. А деревянные и того от 27 тыс.
Поехал мой благоверный и купил материалов-толстенные доски (не те, из которых в магазине стоят качели, а намного толще), цепь для самых толстых коров)))))) и болты там всякие (материалов вышло ровно на 3 тыс.) и начал собирать... Дочь старшая и соседские дети ему в этом помогали))) Один вечер с пивом у парадной и готов каркас качелей... фотки к сожалению нет... Второй вечер с пивом и вуаля-готова лавка.



Все соседи обрадовались, увидев эту чудо-лавочку, подумав, что это для их поп построили, чтобы можно было лясы у подъезда точить))))) Но обломались, когда узнали, что это даже не для детей на площадку... А на дачу!

Отнесли с соседями конструкцию на дачу-установили, повесили сие чудо массивное на цепи, на следующие выходные покрасили аквастопом цвет итальянский орех, и вот качели массивные готовы за 3 тыс. руб.

Осталось из поликарбоната оставшегося сделать крышу, чтобы качели не рухнули от снега навалившегося на них и в след. сезоне сшить подушки под попы... Хотя наверно будет дешевле в ИКЕЕ купить уже готовые)))
Как Вам?
P.S. прошу прощения за задний внешний мой вид... заколебалась я каждую досочку прокрашивать под наставления мужа: "Это же для нас! Не халтурь!!!" Даже сарафан почти свалился))))
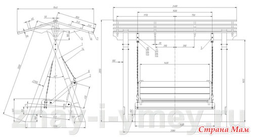
Вот примерный проект по которому мы делали-только доски брали толще и длиннее, качели получились 2 м в ширину
Расход древесины на изготовление садовых деревянных качелей - 0.2 кубометра.
Сборочные единицы:
1. Каркас – 1шт.
2. Скамейка – 1шт.
3. Кронштейн – 2шт.
Детали:
5. Карниз – 8шт.
6. Стропила – 4шт.
7. Рейка 2480х40х30мм – 8шт.
8. Крюк – 6шт.
Стандартные изделия:
10. Болт М10х40 – 2шт.
11. Болт М10х70 – 4шт.
12. Гайка М10 – 6шт.
13 Шайба 10 – 6шт.
Материалы:
14 Цепь 8х32 L=4300мм (длину уточнить по месту).
Размер развертки крыши качелей 2480х1600мм.

Поехал мой благоверный и купил материалов-толстенные доски (не те, из которых в магазине стоят качели, а намного толще), цепь для самых толстых коров)))))) и болты там всякие (материалов вышло ровно на 3 тыс.) и начал собирать... Дочь старшая и соседские дети ему в этом помогали))) Один вечер с пивом у парадной и готов каркас качелей... фотки к сожалению нет... Второй вечер с пивом и вуаля-готова лавка.
Все соседи обрадовались, увидев эту чудо-лавочку, подумав, что это для их поп построили, чтобы можно было лясы у подъезда точить))))) Но обломались, когда узнали, что это даже не для детей на площадку... А на дачу!
Отнесли с соседями конструкцию на дачу-установили, повесили сие чудо массивное на цепи, на следующие выходные покрасили аквастопом цвет итальянский орех, и вот качели массивные готовы за 3 тыс. руб.
Осталось из поликарбоната оставшегося сделать крышу, чтобы качели не рухнули от снега навалившегося на них и в след. сезоне сшить подушки под попы... Хотя наверно будет дешевле в ИКЕЕ купить уже готовые)))
Как Вам?
P.S. прошу прощения за задний внешний мой вид... заколебалась я каждую досочку прокрашивать под наставления мужа: "Это же для нас! Не халтурь!!!" Даже сарафан почти свалился))))
Вот примерный проект по которому мы делали-только доски брали толще и длиннее, качели получились 2 м в ширину
Расход древесины на изготовление садовых деревянных качелей - 0.2 кубометра.
Сборочные единицы:
1. Каркас – 1шт.
2. Скамейка – 1шт.
3. Кронштейн – 2шт.
Детали:
5. Карниз – 8шт.
6. Стропила – 4шт.
7. Рейка 2480х40х30мм – 8шт.
8. Крюк – 6шт.
Стандартные изделия:
10. Болт М10х40 – 2шт.
11. Болт М10х70 – 4шт.
12. Гайка М10 – 6шт.
13 Шайба 10 – 6шт.
Материалы:
14 Цепь 8х32 L=4300мм (длину уточнить по месту).
Размер развертки крыши качелей 2480х1600мм.
Нравятся ли Вам такие качели?






Комментарии
а я пока мечтаю о даче
Качели у вас знатные
Мы взяли недорогие, муж у меня слесарь-сварщик, сварочник имееться, так что если что то отпадет-приварит.
Он у меня больше железные конструкции любит, с деревом не очень
тоже такие хочу!
Вставка изображения
Можете загрузить в текст картинку со своего компьютера: