Дом с мансардой 10х10
Девочки, в этом году планируем залить фундамент на дом (1 сентября уже приступают к работе).
Ну, чтоб начать стройку, надо выбрать дом, планировку...
Я поискала (долго искала) и нашла то, что понравилось и мне, и мужу. Правда, внесли свои корректировки.
Дом изначально был такой
и планировка
Мы решили, что нам не нужны открытые веранды (Сибирь, замучаемся лопатой зимой работать). Потому веранды возведем под крышу.
Плюс, нам не нужны лишние траты из-за неровного фундамента. Нам надо попроще.
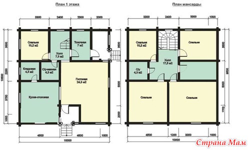
Примерно вот так
Единственное, что тут на плане дом 10х10,5, мы уменьшим до 10х10. Этот план ещё не доработан.
Что мне приглянулось:
1. 2 выхода - центральный и во двор. У нас как раз справа стоит уже банька, возможно, дальнейшем возведем под одну крышу.
2. Кладовка из кухни. Ну, там для баночек, скляночек, да даже для приборов, а то у меня вечно ничего не размещается на кухне
3. Туалет на 2 этажах.
4. На нашем плане, мы сдвинули балкон (он нам не нужен), а за спальней - небольшое помещение. Половина планируется как кладовка, вторая - как гардеробная.
План ещё "сырой". Дом у нас 1 этажный + мансарда. Крышу чуток изменим, чтоб "не съедала" жилое пространство. По плану плошадь комнат ровна нижним, но реально они будут чуток меньше. Дом планируем из бруса, толщина внешних стен - 250 мм
А теперь вопросы по строительству... Я уже задавала их одной хорошей девочке, которая знает в строительстве толк, но вопросы ещё остались.
Я знаю, что муж и сам разберется с ними, но помощь и дельный совет со стороны никогда не помешают.
1. Мы остановились на ленточном фундаменте, только тут и запутались... Муж уже кучу сайтов перелопатил, знакомых поспрашивал...
Фундамент примерно 55 п. м., 40 см толщина.. а вот глубина - тут огромный вопрос...
У нас вода близко. В этом году даже в туалете уличном примерно от земли на 1 м вода стоит. Дождливый год выдался. Да и так почва не сухая совсем.
Вот нам одни советуют мелкозаглубленный фундамент (примерно 40см под землей, и 40 см над, ну плюс подушка, конечно же). Другие советуют только 2 метра, т. е. примерно 1,5 м - под землей. Чтоб не промерзал, Сибирь все-таки. А муж опасается на счет воды... Если на 2 метра заливать фундамент, то что ль прям в воду лить (нереально осушить почу)
Нам уже не сегодня-завтра материалы нужно, а мы определиться не можем... именно с глубиной...
2. Может кто-то подскажет, как правильно залить фундамент по нашему плану. У нас есть свои наброски, но... одна голова хорошо, а двеуже некрасиво лучше
Заранее спасибо!
Ну, чтоб начать стройку, надо выбрать дом, планировку...
Я поискала (долго искала) и нашла то, что понравилось и мне, и мужу. Правда, внесли свои корректировки.
Дом изначально был такой
и планировка
Мы решили, что нам не нужны открытые веранды (Сибирь, замучаемся лопатой зимой работать). Потому веранды возведем под крышу.
Плюс, нам не нужны лишние траты из-за неровного фундамента. Нам надо попроще.
Примерно вот так
Единственное, что тут на плане дом 10х10,5, мы уменьшим до 10х10. Этот план ещё не доработан.
Что мне приглянулось:
1. 2 выхода - центральный и во двор. У нас как раз справа стоит уже банька, возможно, дальнейшем возведем под одну крышу.
2. Кладовка из кухни. Ну, там для баночек, скляночек, да даже для приборов, а то у меня вечно ничего не размещается на кухне

3. Туалет на 2 этажах.
4. На нашем плане, мы сдвинули балкон (он нам не нужен), а за спальней - небольшое помещение. Половина планируется как кладовка, вторая - как гардеробная.
План ещё "сырой". Дом у нас 1 этажный + мансарда. Крышу чуток изменим, чтоб "не съедала" жилое пространство. По плану плошадь комнат ровна нижним, но реально они будут чуток меньше. Дом планируем из бруса, толщина внешних стен - 250 мм
А теперь вопросы по строительству... Я уже задавала их одной хорошей девочке, которая знает в строительстве толк, но вопросы ещё остались.
Я знаю, что муж и сам разберется с ними, но помощь и дельный совет со стороны никогда не помешают.
1. Мы остановились на ленточном фундаменте, только тут и запутались... Муж уже кучу сайтов перелопатил, знакомых поспрашивал...
Фундамент примерно 55 п. м., 40 см толщина.. а вот глубина - тут огромный вопрос...
У нас вода близко. В этом году даже в туалете уличном примерно от земли на 1 м вода стоит. Дождливый год выдался. Да и так почва не сухая совсем.
Вот нам одни советуют мелкозаглубленный фундамент (примерно 40см под землей, и 40 см над, ну плюс подушка, конечно же). Другие советуют только 2 метра, т. е. примерно 1,5 м - под землей. Чтоб не промерзал, Сибирь все-таки. А муж опасается на счет воды... Если на 2 метра заливать фундамент, то что ль прям в воду лить (нереально осушить почу)
Нам уже не сегодня-завтра материалы нужно, а мы определиться не можем... именно с глубиной...
2. Может кто-то подскажет, как правильно залить фундамент по нашему плану. У нас есть свои наброски, но... одна голова хорошо, а две
Заранее спасибо!





Комментарии
Про фундамент не знаю ничего. слышала на сваях строят..
есть свайно-винтовой, но он ещё не протестирован годами, чисто теория. Говорят, что 50 лет выстоит такой точно, но не хочется ошибиться, вдруг теория разойдётся с практикой
Свайно-интовой вообще самый дешевый получается, но страшновато...
Вообще, по пооду фундамента, мы обратились к фирме, которая в нашем районе уже многим делала фундаменты. Но у меня муж такой: ему надо не так, как у всех, а как НАДО!
↑ Перейти к этому комментарию
Тоже в Сибири проживаем.
У нас знакомый так сделал, у него кирпичный 2 этажный дом, но у него почва сухая
Нам предлагали сделать дренаж, а потом заливать... Но это трудоемко, да и затратно
↑ Перейти к этому комментарию
Мои родители когда строились, фундамент капали 1,5-2 м. в землю, над землей фундамент около 1м. У нас получается большой подвал,очень удобен для хранения всякой всячены.
В вашем случаи,я бы посоветовала делать дренажную яму иначе замучаетесь от сырости. У моих знакомых так, пришлось на 1-ом этаже пол менять полностью, т.к с гнил и плесенью пошло.
Мои родители когда строились, фундамент капали 1,5-2 м. в землю, над землей фундамент около 1м. У нас получается большой подвал,очень удобен для хранения всякой всячены.
В вашем случаи,я бы посоветовала делать дренажную яму иначе замучаетесь от сырости. У моих знакомых так, пришлось на 1-ом этаже пол менять полностью, т.к с гнил и плесенью пошло.
↑ Перейти к этому комментарию
если ленточный, то около 250 - 300 тыс....
У нас за работу берут 3000 за 1 куб, плюс ещё материалы
тоже планы домов изучаю, только нам надо с гаражом на 2 машины, + муж хочет подвал делать, но тоже опасаемся в плане затопления как будет
а вы гараж отдельно стоящий хотите?
ооот... у нас подвал никак - эт точно.
↑ Перейти к этому комментарию
И можно же потом все под одну крышу соединить, если что. У меня муж так потом хочет: и баню, и гараж (проходы к ним) под крышу сделать
А у вас сколько соток? У нас места мало - 6 соток всего.
* Ты где потерялась???
* Ты где потерялась???
↑ Перейти к этому комментарию
а ты еще отдельностоящий гараж собираешься
↑ Перейти к этому комментарию
у брата дом из бруса тоже. Сейчас уже крышу накрыли
Внутри будут обрабатывать брус и канат между ним прикреплять.
а вот тут немного видео http://www.youtube.com/watch?v=Sbwdwsd_5HI
Вы ведь живете в другом месте?
Нас стройка не торопит: жить есть где... Потому можно растянуть чуток. Но муж сказал, что через 2 года надо въезжать по-малеху.... Иначе мы второго малыша так и не родим...
Вставка изображения
Можете загрузить в текст картинку со своего компьютера: